

Enough Tiny House
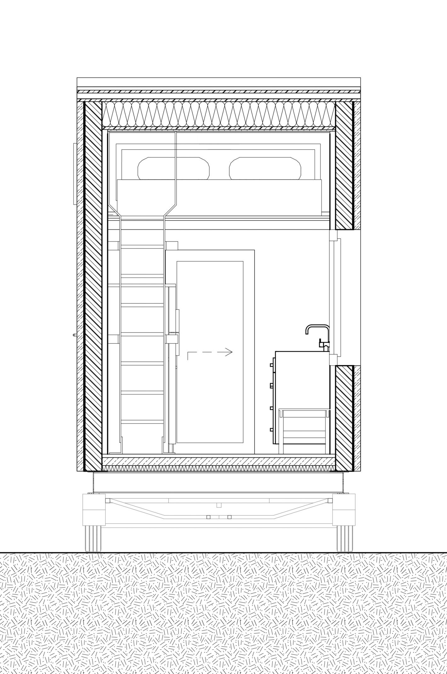
This project dives further into the Enough Structures concept, this time in the form of a Tiny House. Specifically designed for landowners or stewards who need a weekend home, field office, atelier, family cabin, or guest house in the countryside.
- Client
Enough Structures
- Disciplines
- Year
- 2023

Drawing showing assembly schematics
Section drawings


1/2
