
Nooks + Cranny's House
A study for a house in Austin Texas where real estate prices grew faster than anywhere else in the country since 2020. The house uses common construction techniques and materials to create an affordable rental for our client. The lot has an existing main property in the front of the site.
- Client
Enough Structures
- Location
- Austin, TX, USA
- Disciplines
- Year
- 2023
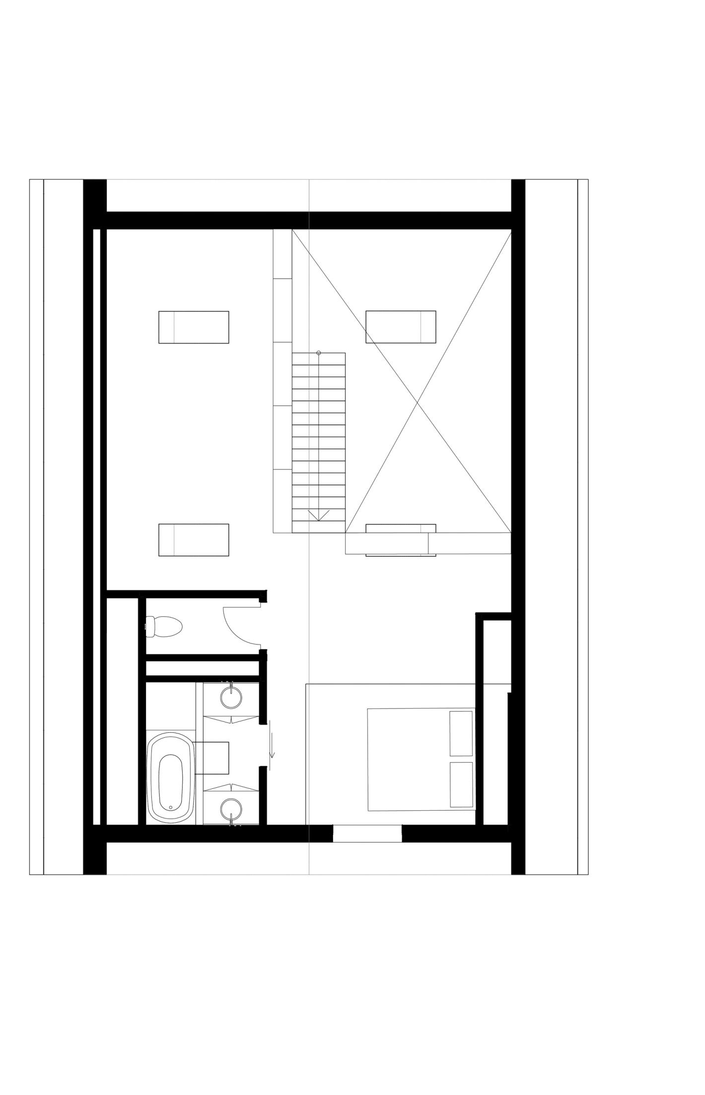
Floor Plans


1/2

Section
